€ 499.000 Lavagna soluzione semi indipendente collina Santa Giulia
Rif: IMMO-123491547
- 51 Foto
- 6 Planimetrie
- Mappa
- Video
Descrizione
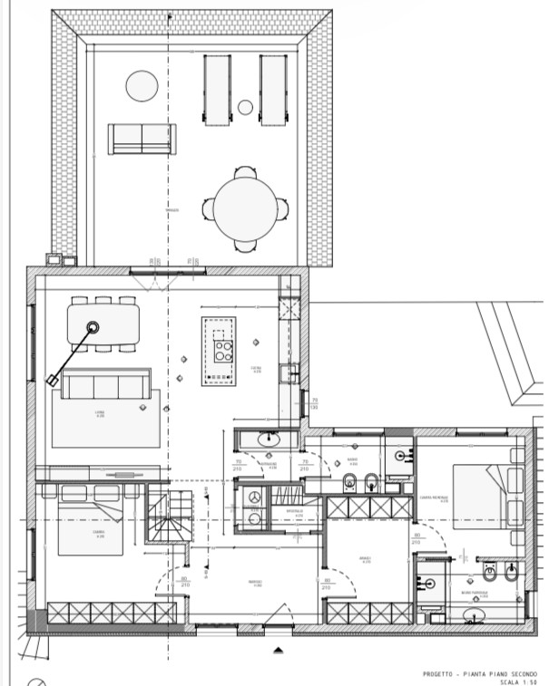
Nella splendida cornice della collina di Santa Giulia vendiamo soluzione semi indipendente di mq 141 oltre a box auto,giardino e terreno .L'appartamento è posto al piano 2° ,internamente suddiviso in ingresso ,ripostiglio,ampio soggiorno panoramico con zona cottura da cui si accede ad un terrazza panoramica con vista mare,due camere da letto matrimoniali ,bagno padronale e bagno di servizio entrambi con box doccia;al piano sottostante con accesso sia interno che esterno troviamo la cantina dove e stata installata la caldaia.L'immobile attualemnte(come da foto) è da finire,tutta la parte strutturale e d'impiantistica è stata completata,porta blindata gia presente,gli infissi (doppio vetro) sono stati già montati;l'impianto di climatizzazione è stato già tracciato e messo in posa,oltre al camino gia installato nel soggiorno;il costo per rifinire il tutto si aggira intorno ad Eu. 30.000.L'immobile è stato oggetto di bonus e sono stati posizionati sul tetto pannelli solari,inoltre è stato isolato con cappotto termico.Completano la proprietà due posti auto oltre ad un box al piano terra di mq 43,giardino in adiacenza all'appartamento,terreno distaccato a 40 mt dalla casa(accessibile da sentiero vicinale)al cui interno troviamo manufatto tipico ligure(categoria c2) di mq 18 ,ideale per deposito.richiesta Eu. 499.000.Per maggiori dettagli relativi a questo immobile e per altre proposte visita il nostro sito oppure segui il nostri profili su Instagram e Facebook; siamo sempre disponibili al numero 0185773172 oppure 3923991061.In the splendid setting of the Santa Giulia hill, we are selling a semi-detached property measuring 141 square meters, plus a garage, garden, and land. The apartment is located on the second floor and is divided into an entrance hall, storage room, large living room with panoramic views and kitchenette leading to a panoramic terrace with sea views, two double bedrooms, master bathroom and guest bathroom, both with shower cubicles. On the floor below, with both internal and external access, is the cellar where the boiler has been installed. The property currently (as shown in the photos) is unfinished, but all structural and plant engineering work has been completed, a security door is already in place, and double-glazed windows have been installed. the air conditioning system has already been laid out and installed, in addition to the fireplace already installed in the living room; the cost to finish everything is around Eu.30,000. The property has been subject to bonuses and solar panels have been installed on the roof, and it has also been insulated with thermal cladding. The property also includes two parking spaces, a 43 m² garage on the ground floor, a garden adjacent to the apartment, and land 40 meters from the house (accessible by a local path) with a typical Ligurian building (category c2) of 18 m², ideal for storage. Asking price Eu.499,000. For more details about this property and other offers, visit our website or follow our profiles on Instagram and Facebook; we are always available at numbers 0185773172 or 3923991061






